賃貸詳細情報

賃貸

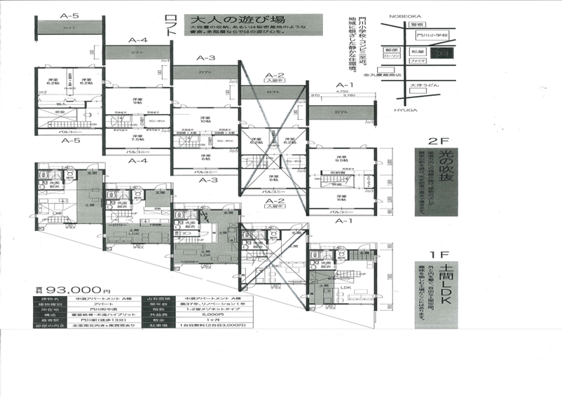
中須アパートメントA-1,A-3,A-4,A-5

物件概要

賃 料 93,000円
所在地 門川町中須5丁目
間取り 2LDK
面 積
敷 金
礼 金 93000円
共益費 5000円
築年数 築37年 リノベーション1年
構 造 重量鉄骨・木造ハイブリット
種 目 アパート
家賃保証/
保険等
家賃の 50%~100%
取引形態 仲介
駐車場 1台込み 2台目3000円
小学校区 門川小学校
中学校 門川中学校
設 備 Wi-Fi完備 エアコン2台or3台
備 考

写真はA-4になります

全部屋間取りが変わります。

カフェやオフィスにも最適です。